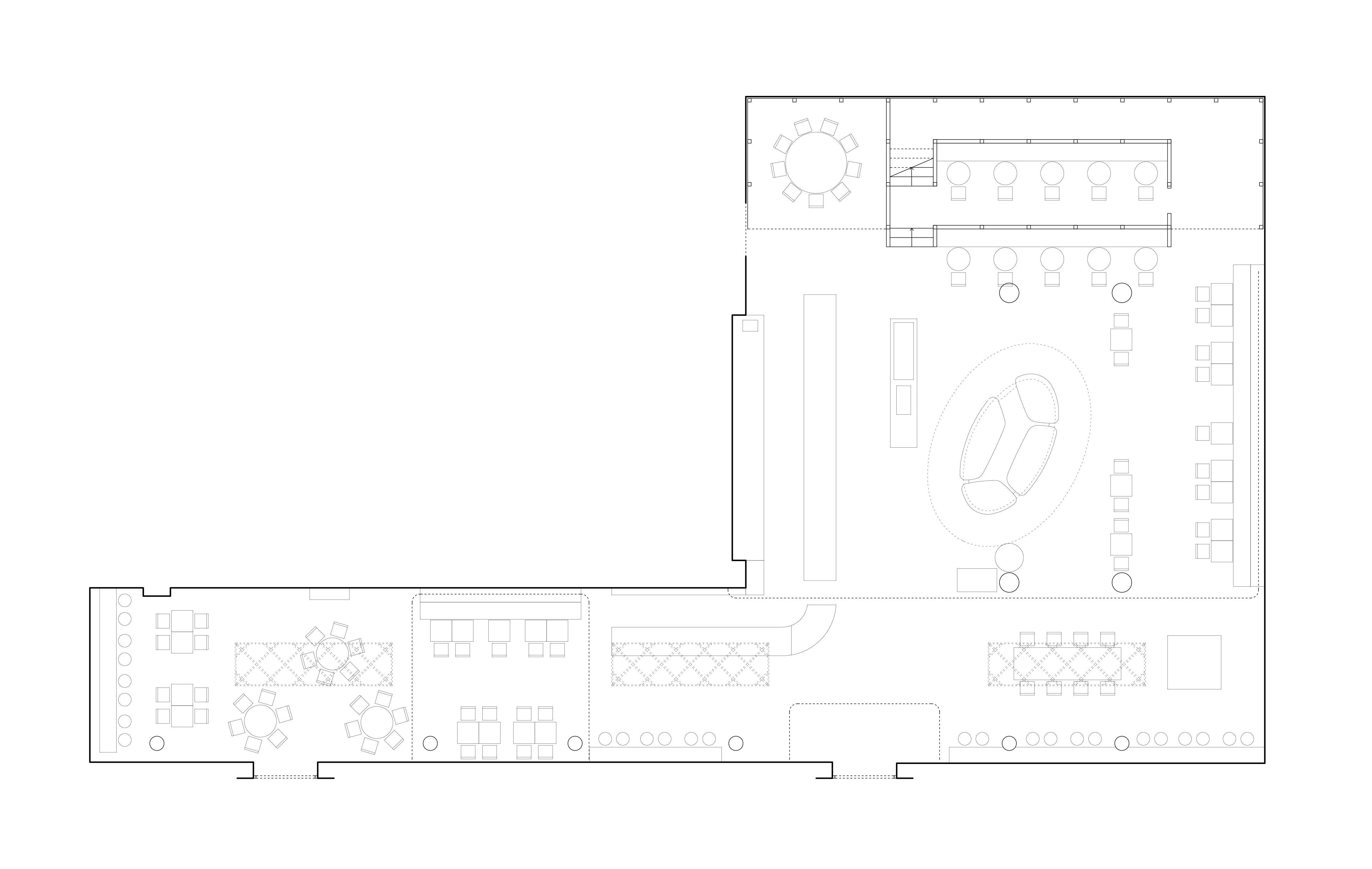
Projet by Joseph Deane , Giona Bierens de Haan & Youri Kravtchenko | Photo de Dylan Perrenoud | Dessins de Josephie Devaud | Bâle 2019
Projet by Joseph Deane , Giona Bierens de Haan & Youri Kravtchenko | Photo de Dylan Perrenoud | Dessins de Josephie Devaud | Bâle 2019