Project by Joséphine Devaud & Youri Kravtchenko | Photo by Dylan Perrenoud | Drawings by Joséphine Devaud | 2021

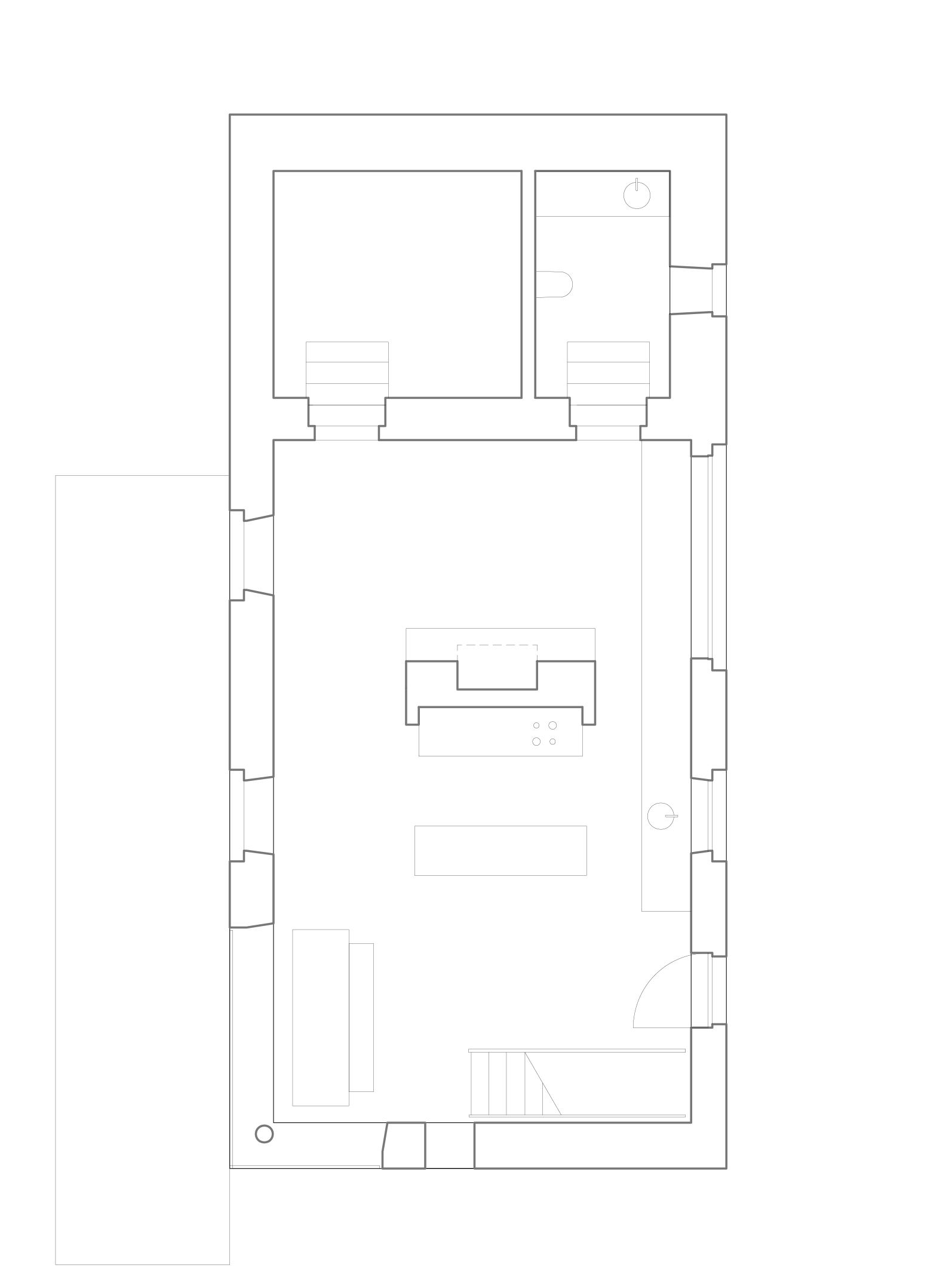
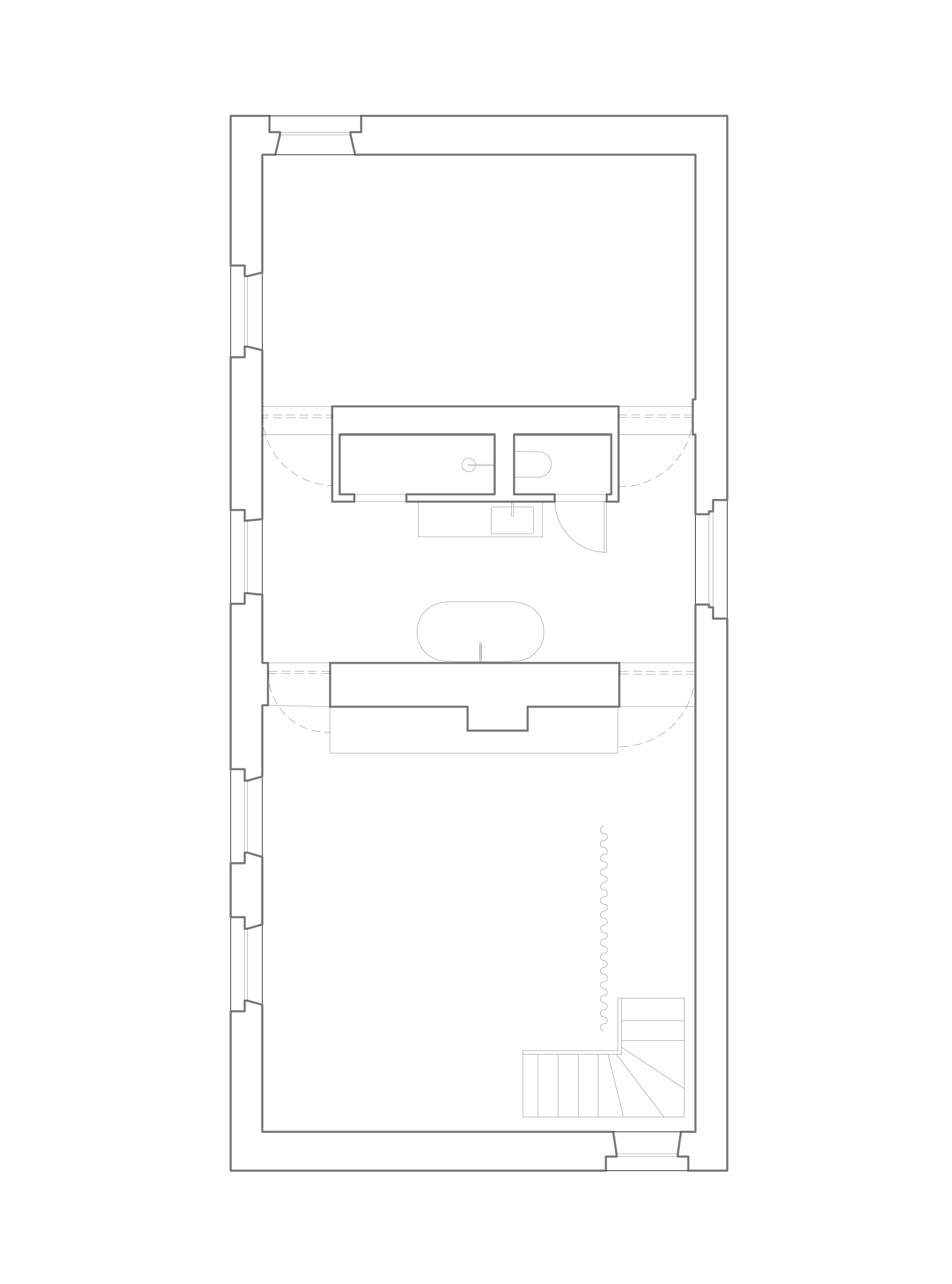
Pré de Joux effortlessly merges the found state of a farmhouse in nature with the aspiration towards a completed building. Inspired by Japanese floral art, ikebana, the project centers around three main principles symbolizing heaven, earth, and humanity: the three pillars of asymmetry, space, and depth. Interventions are minimal, enhancing the poetic essence of existing elements such as a framed view, a concrete kitchen, a fireplace, a rediscovered arch, and two wooden walls left untouched yet purposefully integrated into the space.