Project by Youri Kravtchenko & Chloé Birrer | Construction management by Chloé Birrer | Photo by Hamoudi Schubber | Drawings by Joséphine Devaud | 2017

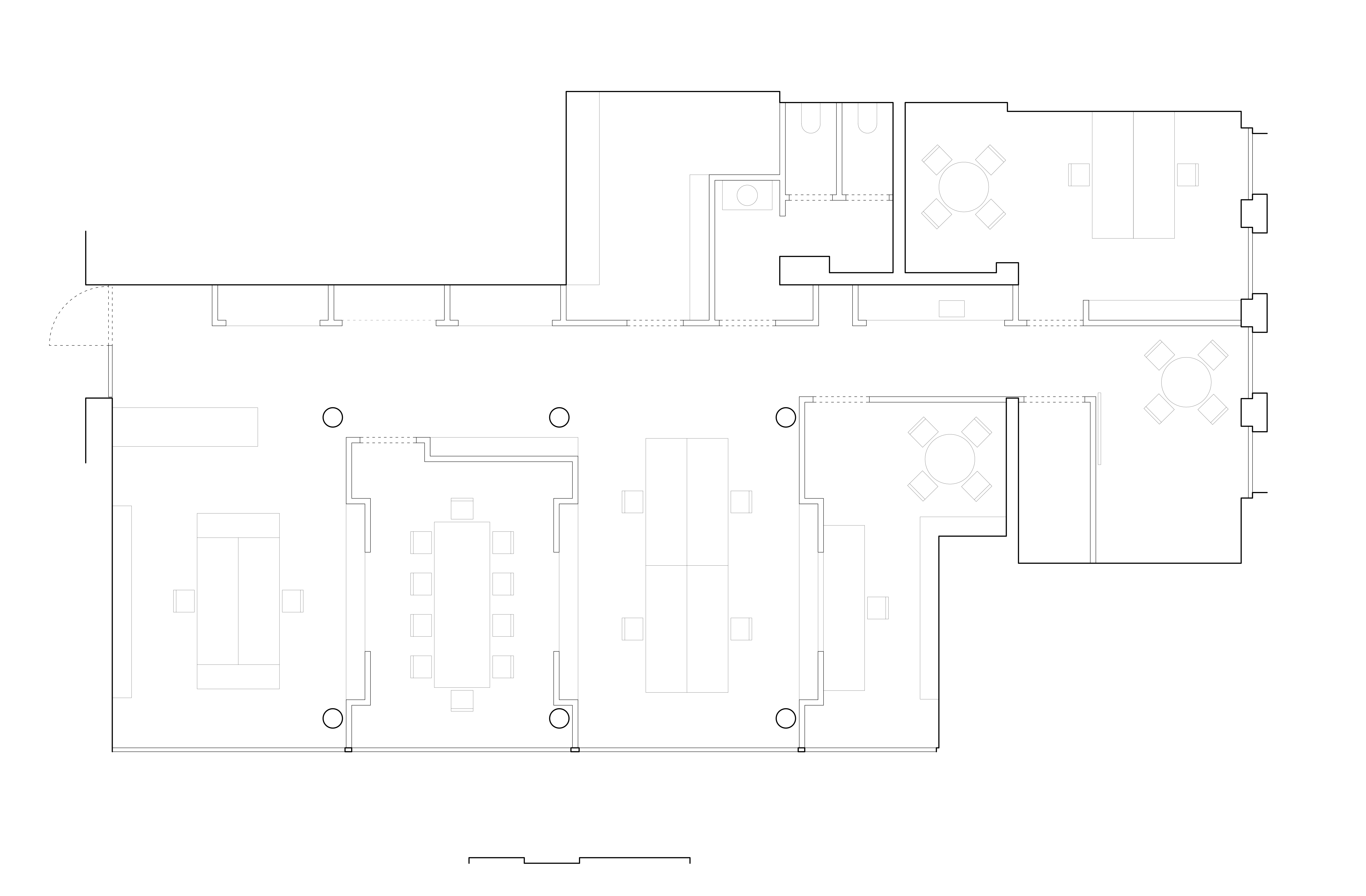
NDC was commissioned by a fiduciary to construct and furnish office spaces within a recently built downtown Geneva building. Using only three materials, modest yet acoustically effective (UniAkukstik, Linoleum, and birch plywood), and a simple layout that expands perspectives beyond the eye's reach, we achieved a spacious, elegant, and cost-effective environment.