Project by Youri Kravtchenko, Gabriel Fiette & Gabriel Chareton | Construction management by Gabriel Chareton| Photo by Alicia Dubuis | Drawings by Gabriel Fiette | 2023

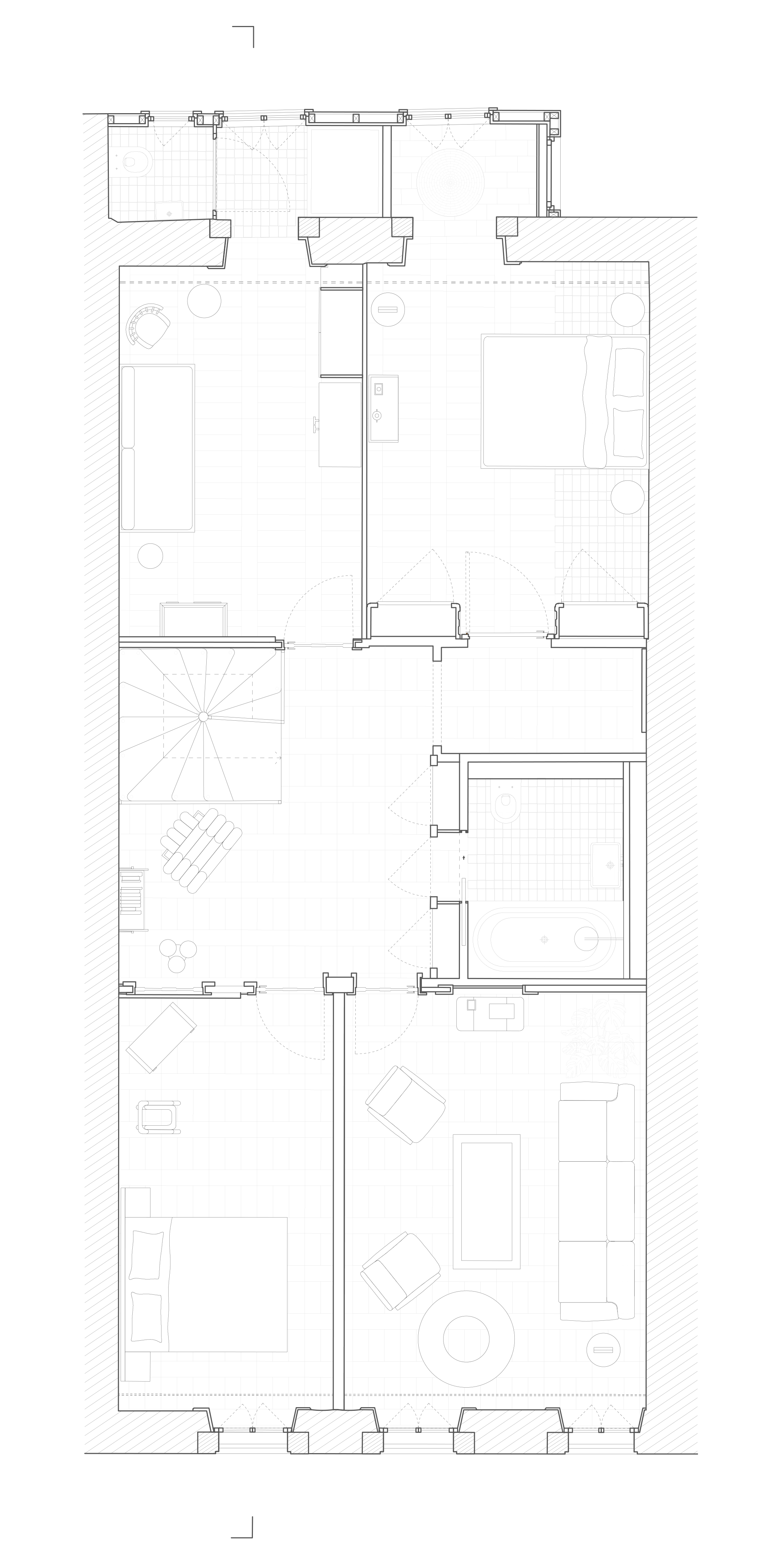
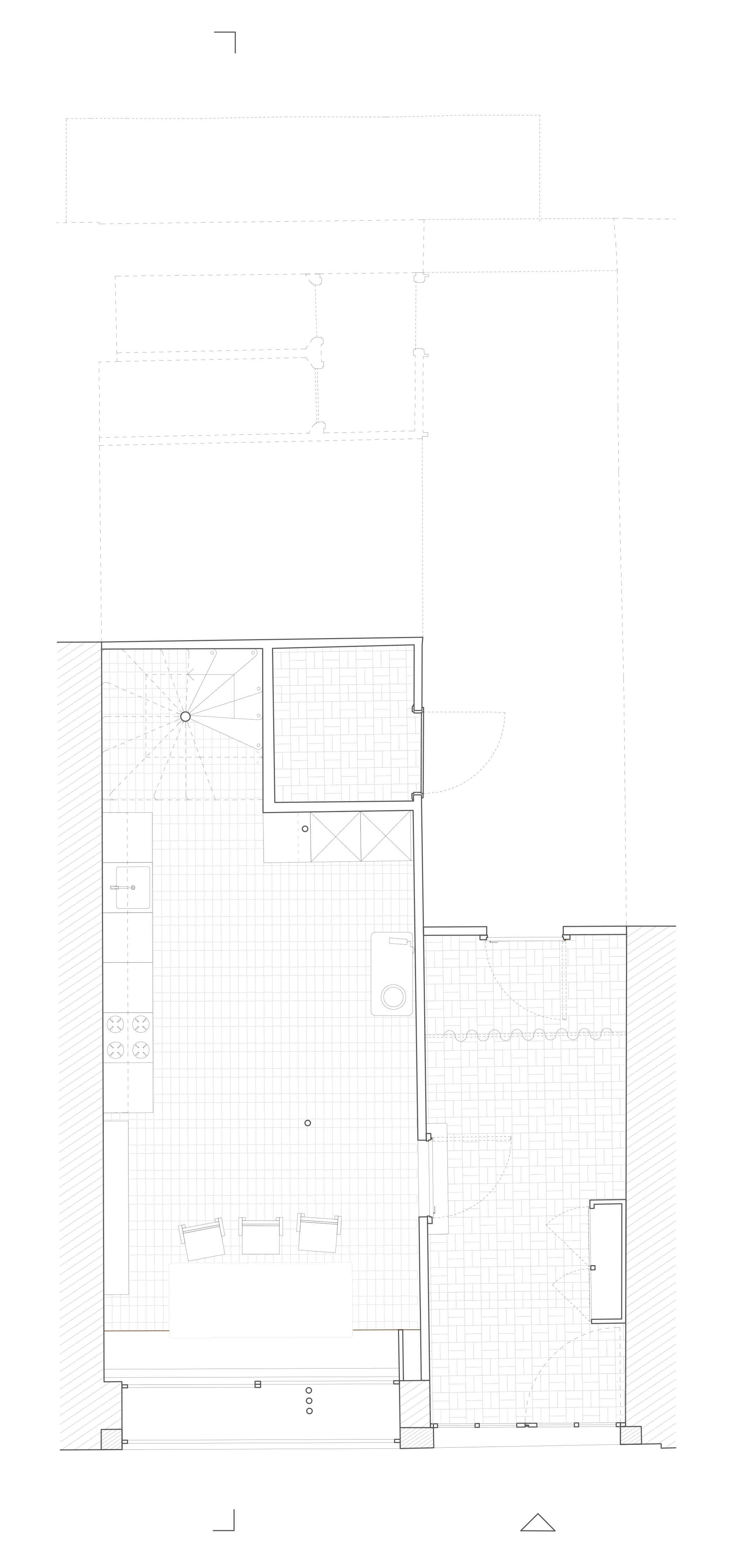
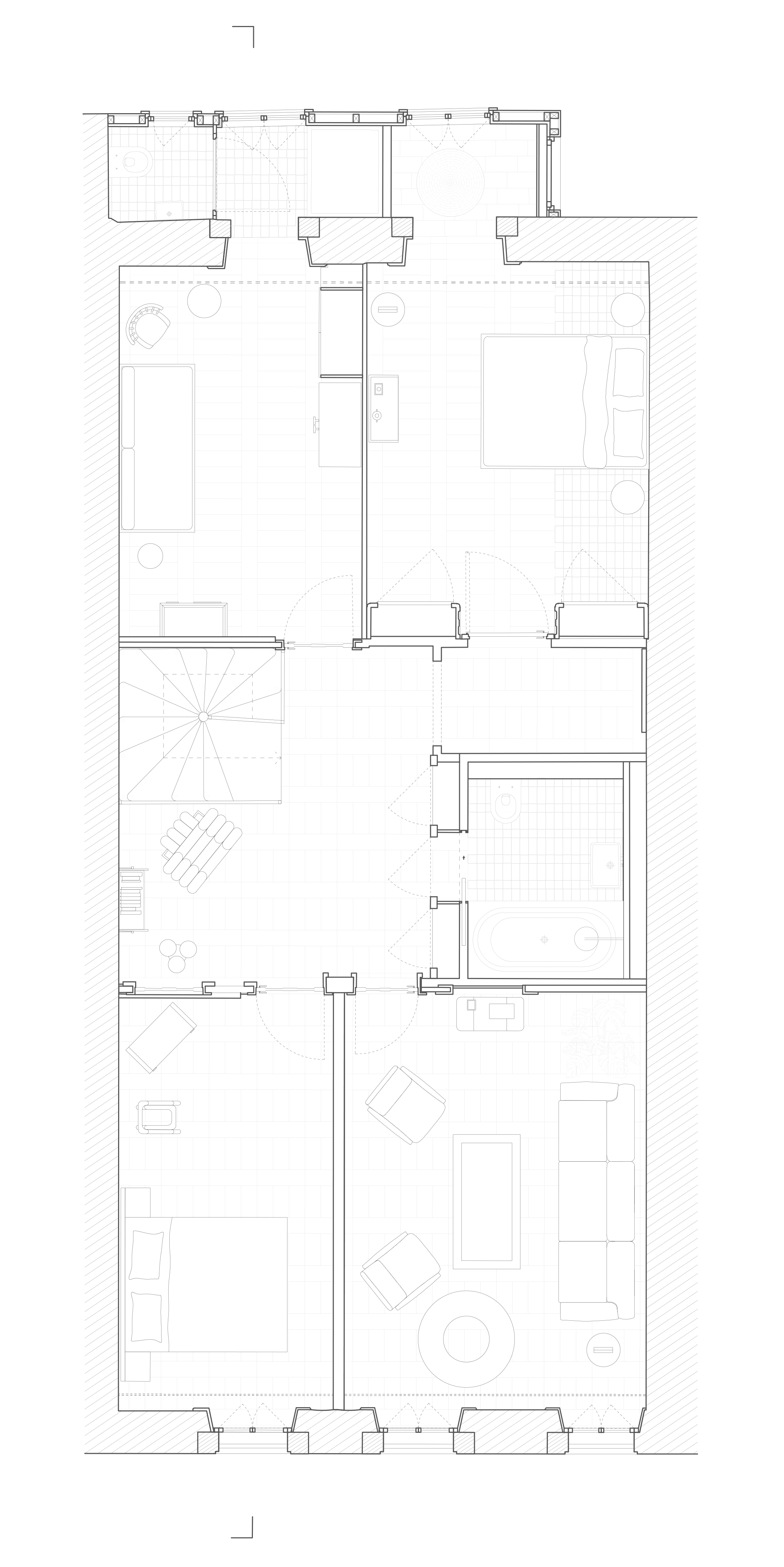
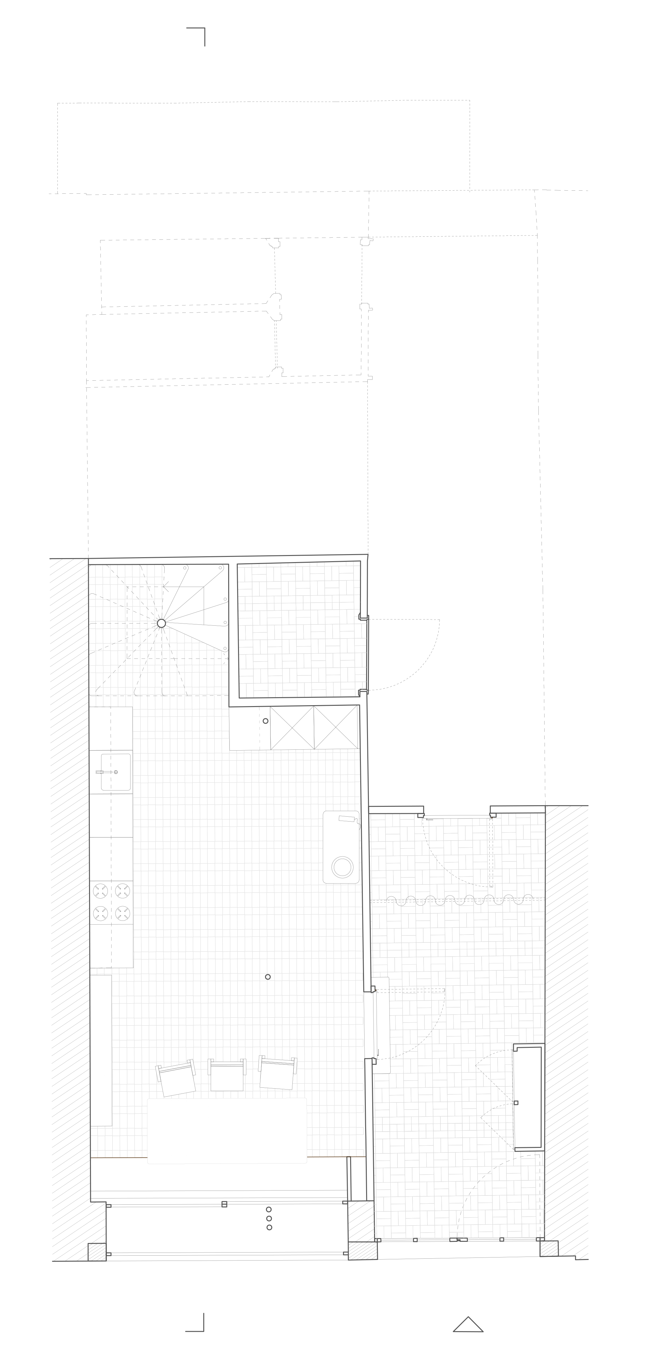
In the heart of Carouge, in the former premises of the theatre of the same name, the interior design studio and showroom DIMANCHE has just finished its guest house. Or rather that of Madame K., a cultured, whimsical and above all fantastical woman who served as the model for this small town house, entirely transformed and furnished by DIMANCHE. Madame K., who is obviously away on a trip, has agreed to let you have the keys. 

TO BOOK THE HOUSE.