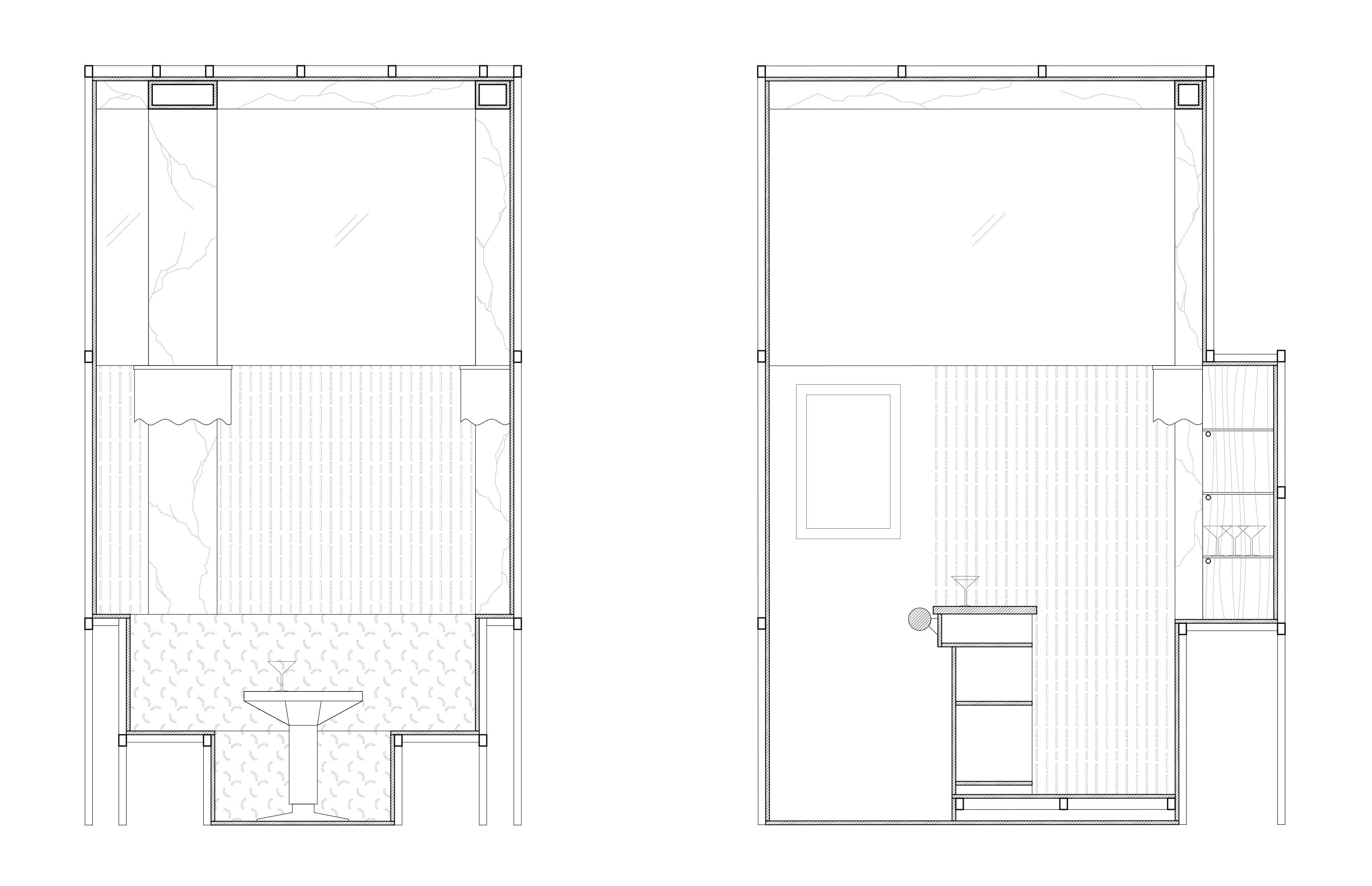
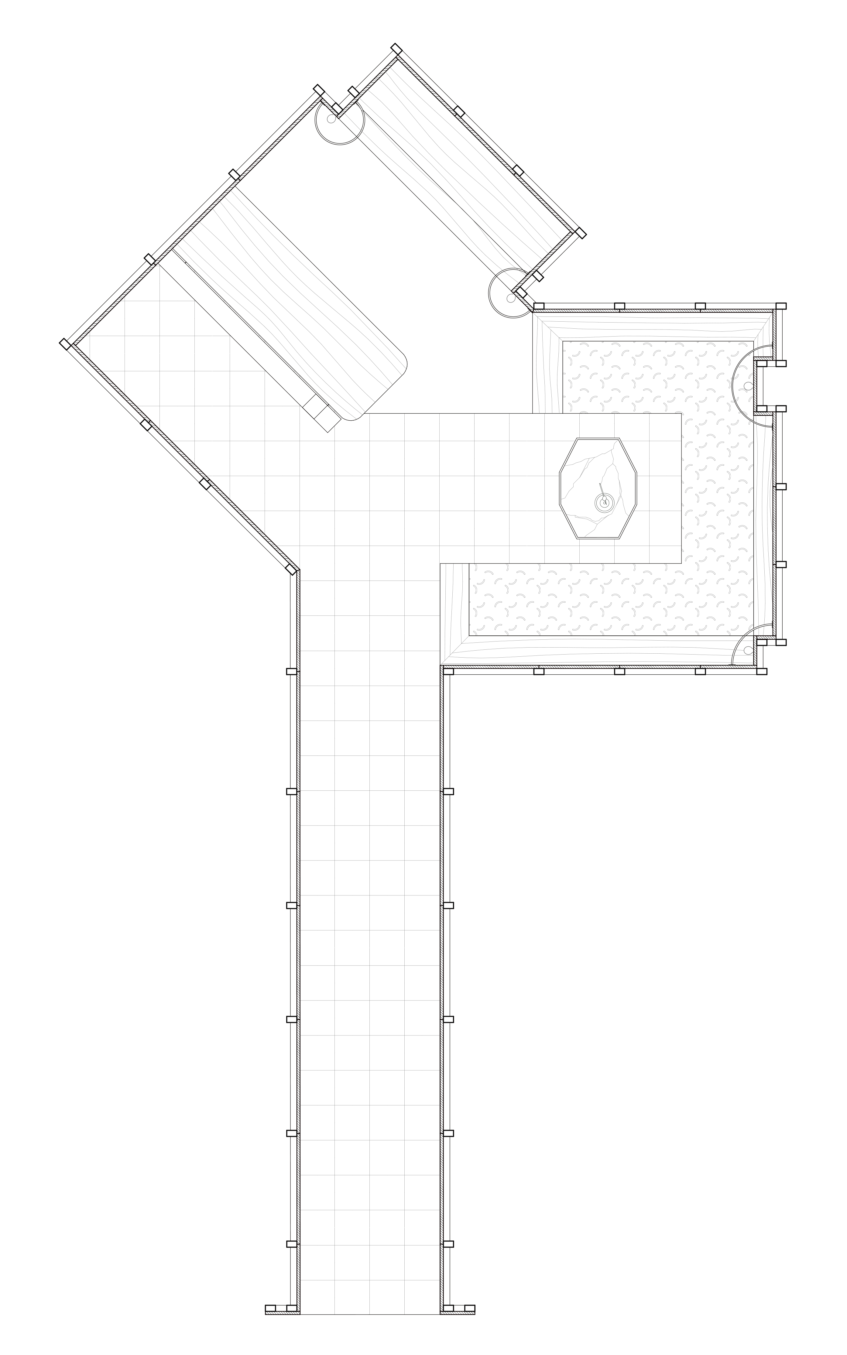
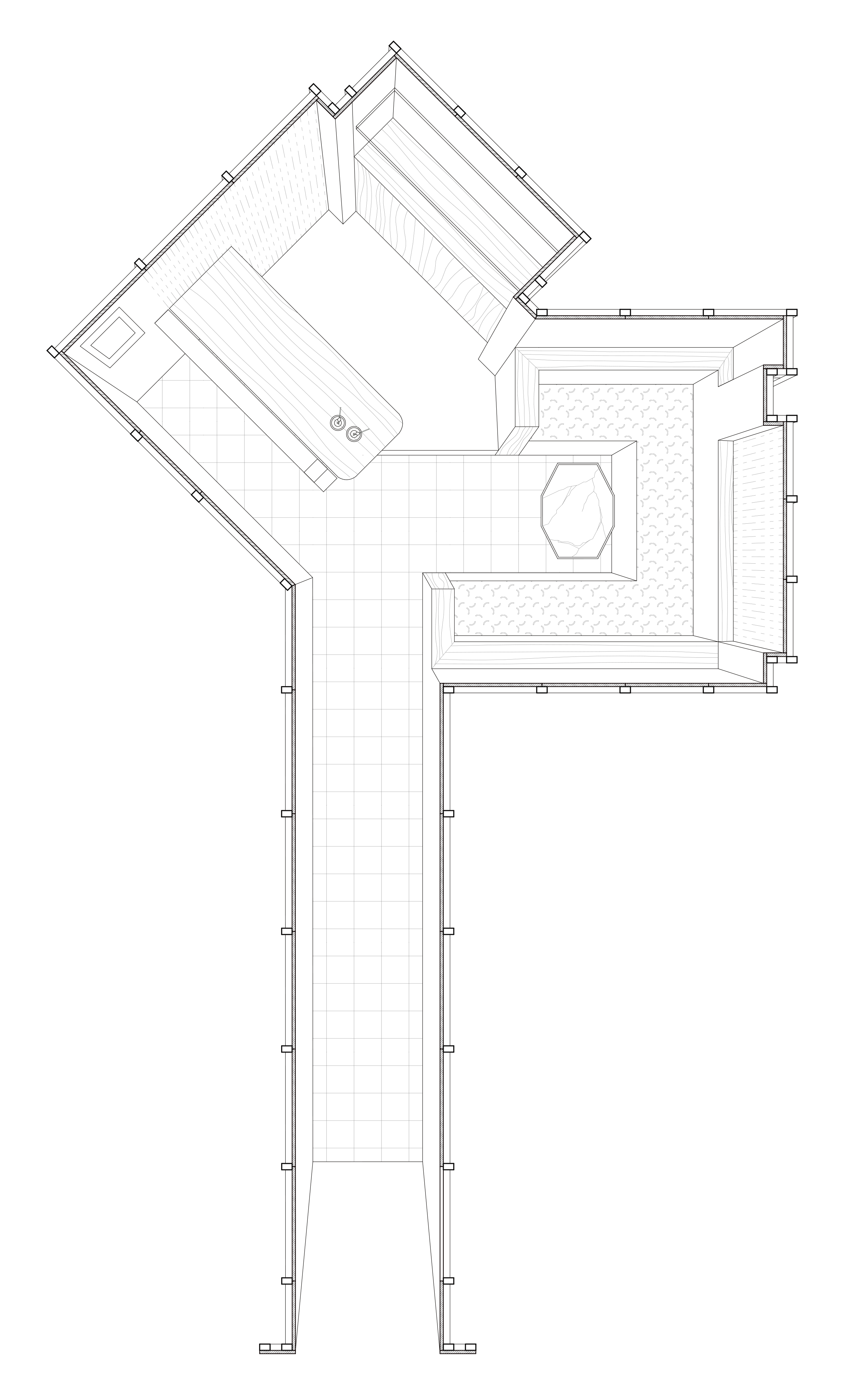
Project by Youri Kravtchenko & Alice Proux | Construction management by Alice Proux | Photo by Baptiste Coulon | Drawings by Alice Proux | 2018

Loos Lab, presented at Designers’ Saturday 2018 in Langenthal from November 2-4, was an exploration of reality and illusion inspired by Austrian architect Adolf Loos and his manifesto "Ornament and Crime" Led by Youri Kravtchenko and Javier Fernández Contreras, interior architecture students from HEAD created an experimental space, #LOOSLAB, based on Loos' American Bar. This project challenged perceptions of reality through spatial and conceptual collaboration within the exhibition space. Recognized with a special mention from the jury for its visual quality and immersive strength, #LOOSLAB dissected and reassembled the original bar's plan, creating a new, heightened reality that explores the relationship between image and perception.