Project by Youri Kravtchenko & Maud Abbé-Decarroux | Construction management by Maud Abbé-Decarroux | Photo by Dylan Perrenoud | Drawings by Maud Abbé-Decarroux | 2023

James Fazy is a renovation project for various areas of a preserved 19th-century complex. It is composed of three buildings at boulevard James-Fazy 6-8-10, a major axis in Geneva located close to the railway station. The renovations of both main spaces were aimed at creating easy-to-access workspaces.

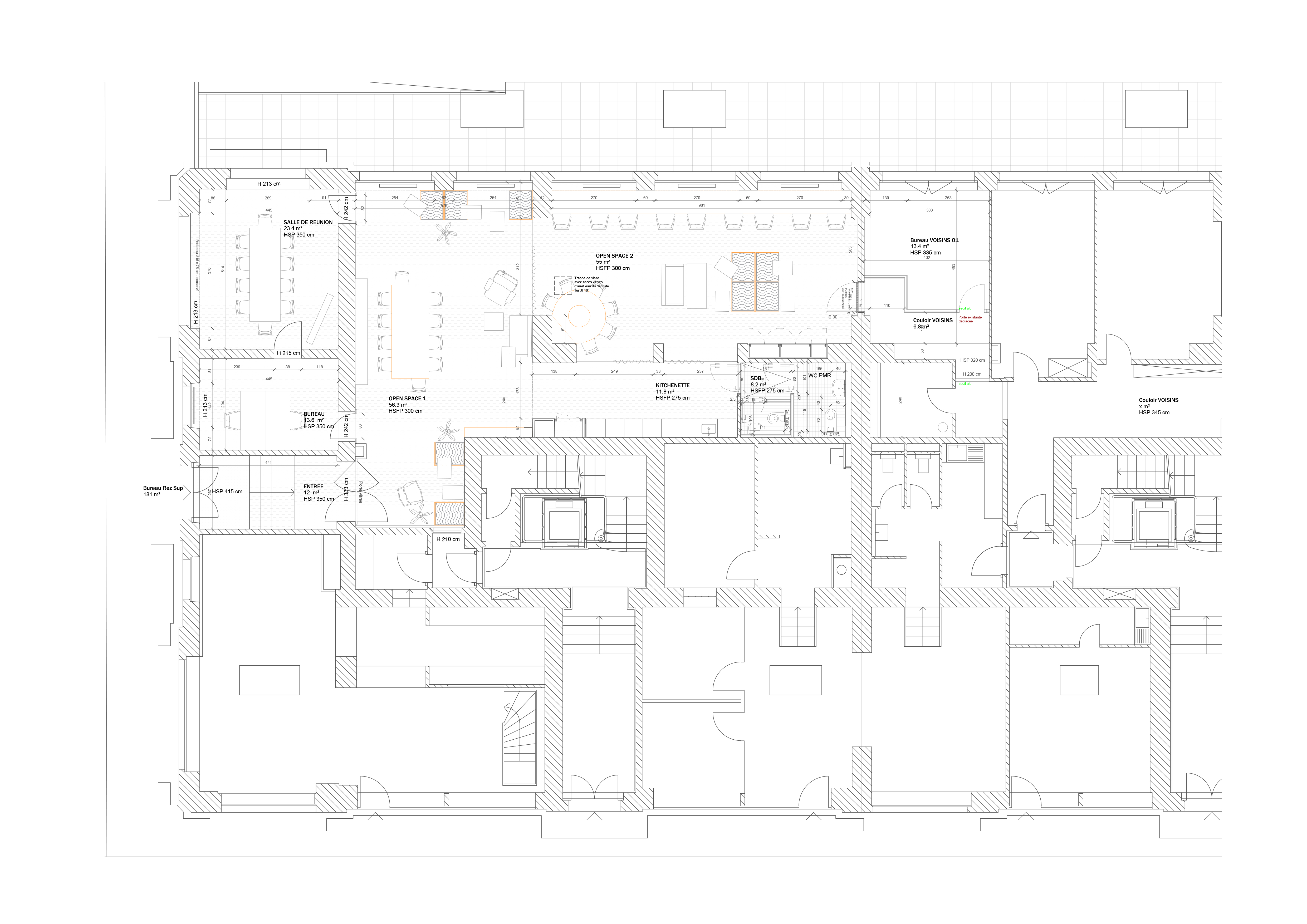
“Voisins coworking”, well know and Geneva and already established in the building, took advantage of the opportunity to expand its offer by linking the existing offices and café to the new facility. The new workspace was designed to be highly flexible, offering a large coworking room that could easily be transformed into a large room for events, conferences and receptions, as well as a closed office and meeting room for an association for the reintegration of the 50+.

The furniture designed for the occasion is inspired by the simplicity of design but great functionality of Lina Bo Bardi's creations for the SESC Pompeia in São Paulo. The sofa modules fit together perfectly to create - as required - work areas throughout the room. They can also be stored under the “bandeau” table located under the windows to completely free up the space. The round table unfolds or folds up against the wall, creating a presentation board with a small side board. A kitchenette offers coworkers a moment of relaxation and makes the place a convivial place where working and sharing cohabit.

The renovation restored the building's original elements, such as the stone staircase in the entrance hall, and the moulded woodwork and ceiling in the meeting room and office.

The three entrances and stairwells were also renovated. The original materials, such as travertine and oak, were highlighted, restoring the cachet of these entrances, which successive renovations had masked the historic value of the site. The old wooden doors were renovated to conform to today's fire standards, while retaining their original appearance. The mouldings discovered under the false ceilings were also brought back to life.