Project by Maud Abbé-Decarroux & Youri Kravtchenko | Construction management by Maud Abbé-Decarroux | Photo by Juliette Contat | Drawings by Maud Abbé-Decarroux | 2025

“Gy” is a house renovation project in the protected center of the village of Gy. Its roadside location and the stories told by its owner's family lead us to believe that it could be the old customs house - before the construction of the one designed by Marc Camoletti.

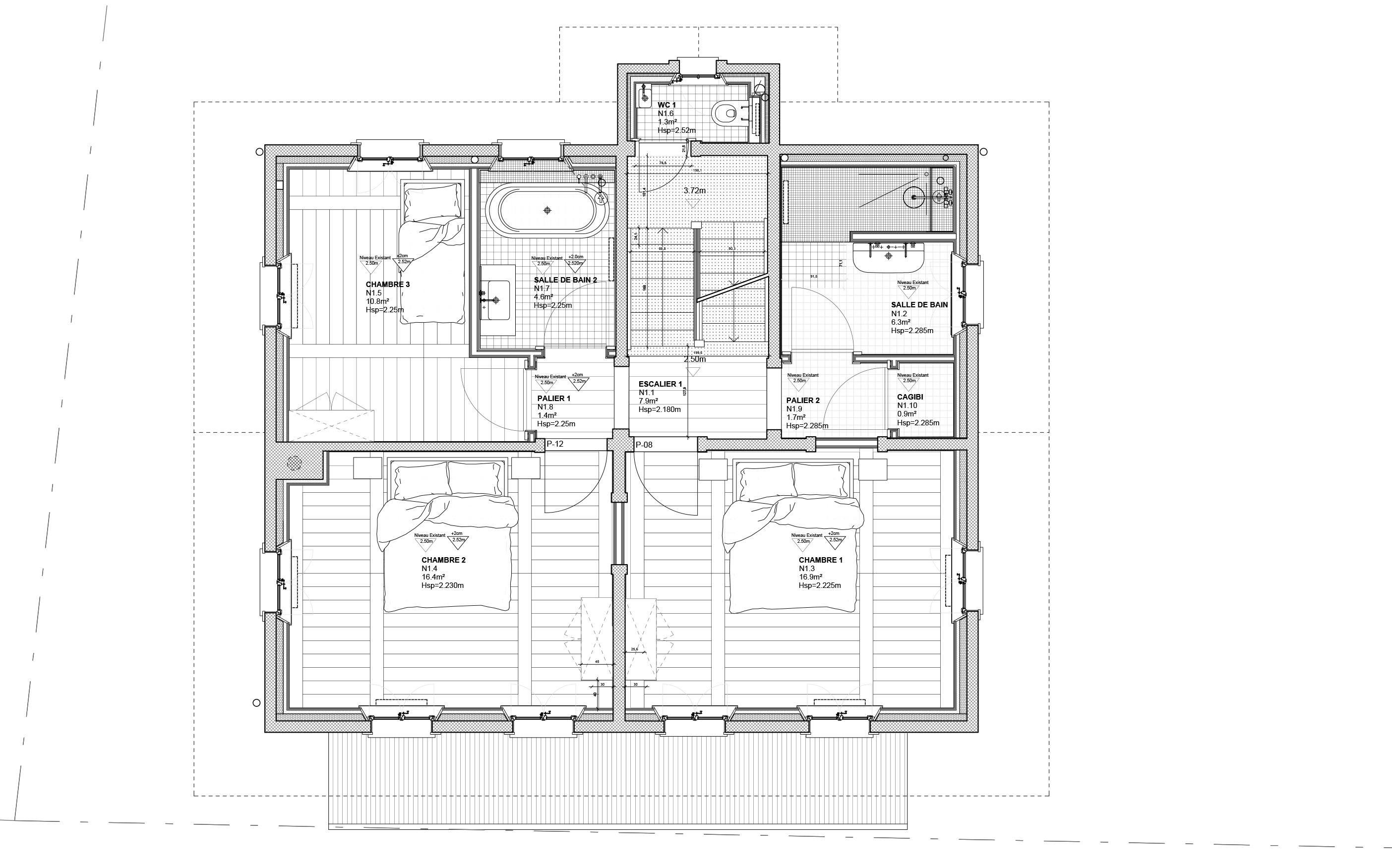
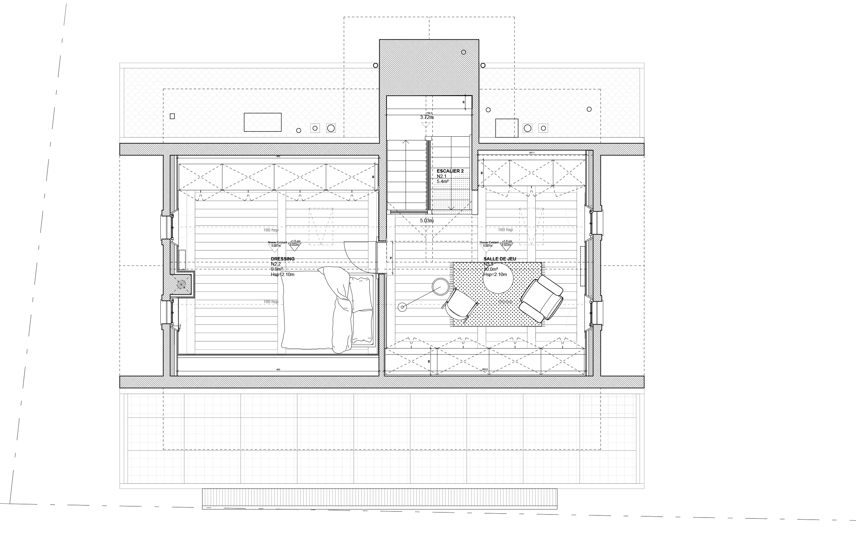
Untouched for years, the house and its annex were in need of a fresh look! The work focused on structural consolidation, complete replacement of the roof, installation of a heating system and renovation - both inside and out - using materials in harmony with the existing building.

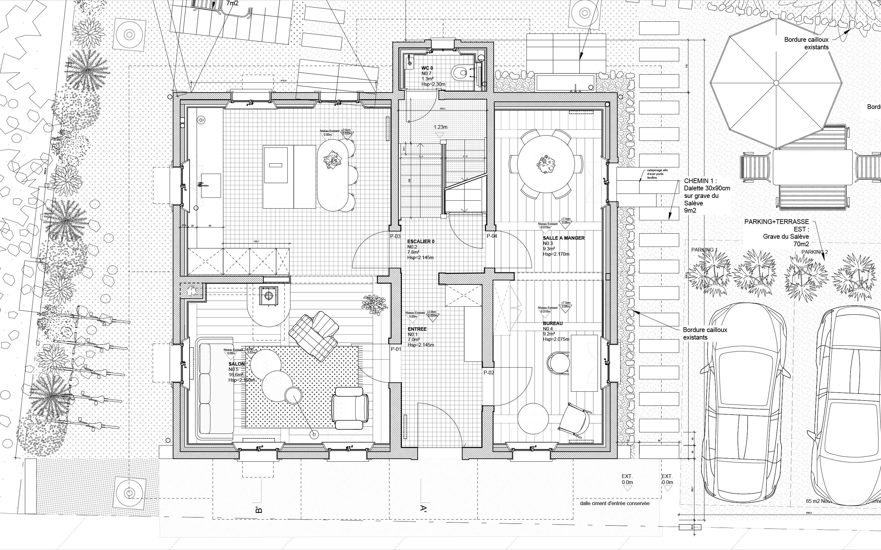
The spacious garden has also been enhanced, and new openings have been created in the rear facade of the house to emphasize its connection with the landscape.

Care was taken in the choice of materials to respect the language of the surrounding and traditional buildings: lime rendering, old-fashioned oak windows, etc. Existing elements were preserved as much as possible and renovated or relocated, such as the doors on the first floor, which were reused to create the new bathrooms.

The marquise and the rosebush will continue to be part of the charm of the « little blue house » as it is called-in reference to its original color.

However, its thermal comfort has been completely revisited. Its heating system is based on the use of geothermal energy, and the entire south-facing side of the roof is covered by photovoltaic and thermal solar panels.