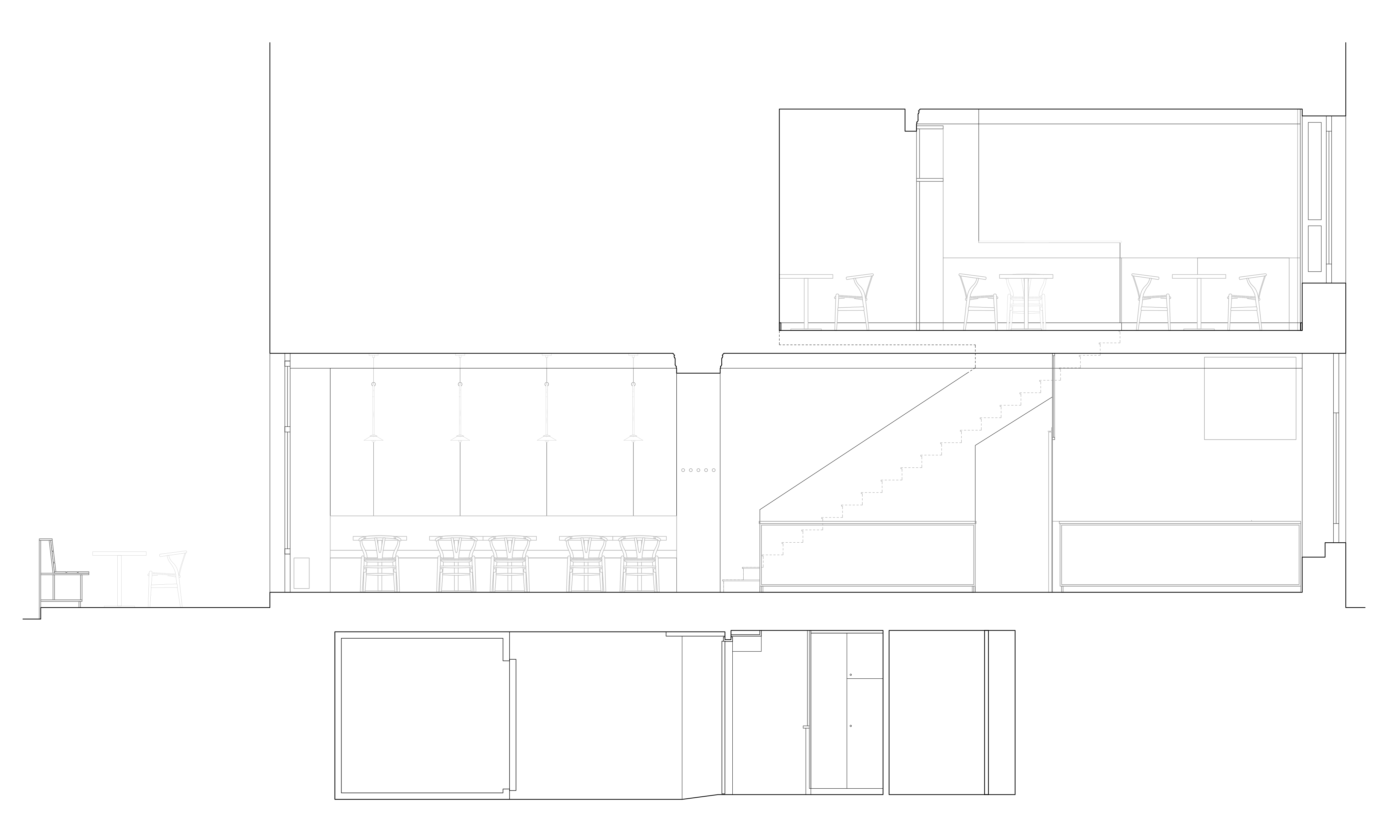
Project by Youri Kravtchenko & Benoit Busschaert | Construction management by Benoit Busschaert | Photo by Régis Golay | Drawings by Head-Carolina Rodrigues | 2023
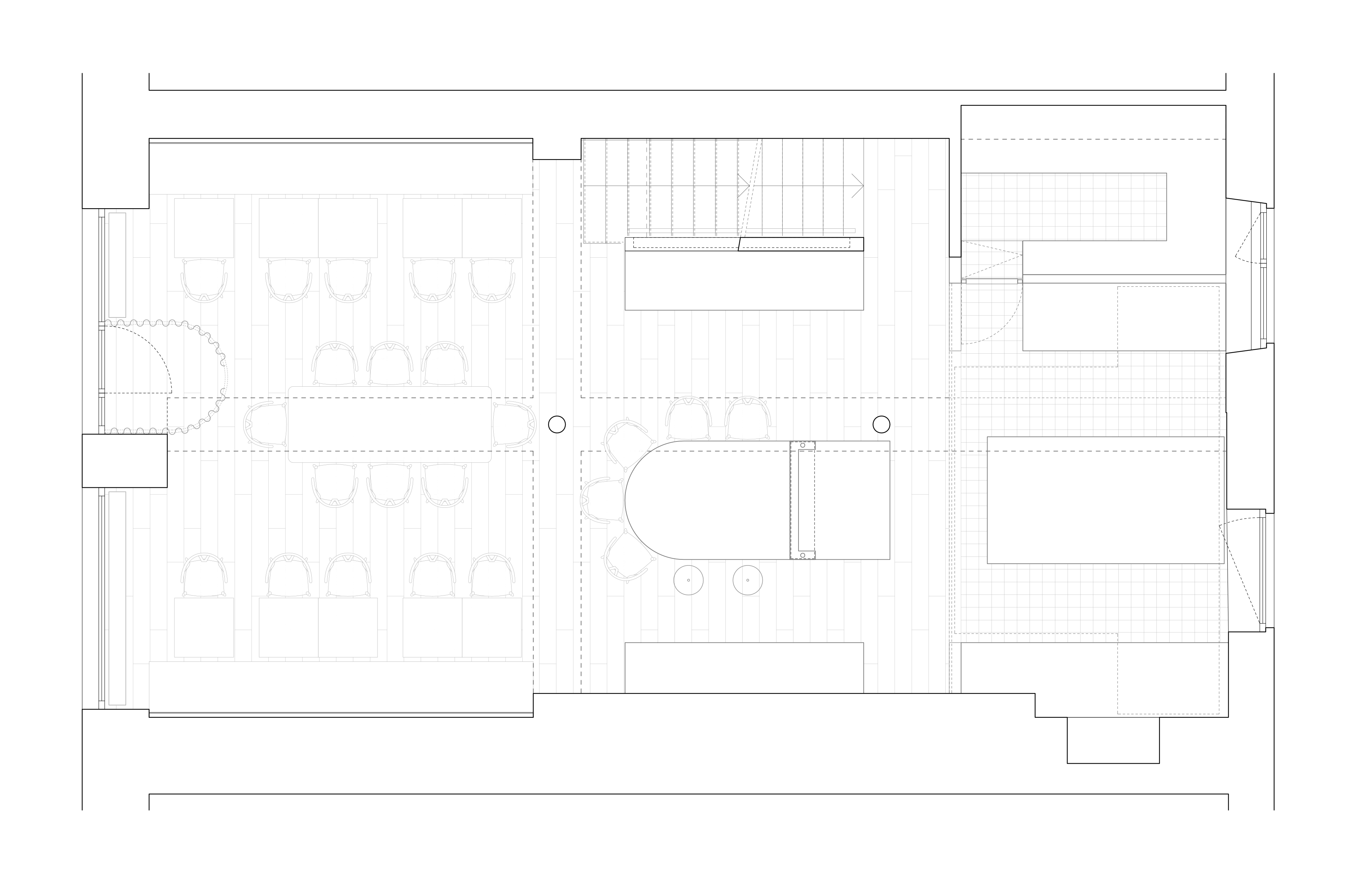
Project by Youri Kravtchenko & Benoit Busschaert | Construction management by Benoit Busschaert | Photo by Régis Golay | Drawings by Head-Carolina Rodrigues | 2023